2022 Documented Design
Sponsored By: Vectorworks
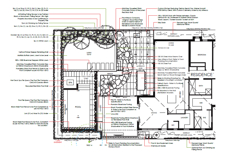
Winner: C.O.S. Design, Mount Martha Project
Judge's Comments:
"Displaying an excellent connection to the brief, this garden is beautifully designed for its coastal environment setting.
A professional set of drawings that tackled a very difficult site were presented, showing clever problem solving with excellent supporting documentation. The design itself brought a cohesive selection of materials together through clear and precise specifications resulting in an exciting and innovative response to the challenges presented by the site."
Contact Information:
Web: www.cosdesign.com.au






