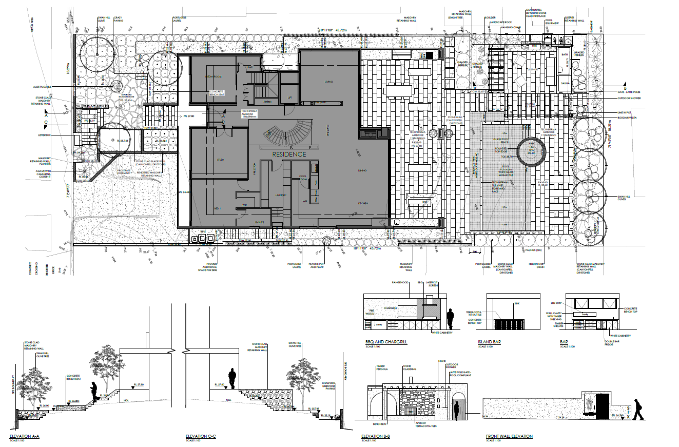
2023 Documented Landscape Design
Gold: C.O.S Design for their Red Hill Project
Judge's Comments:
"Due to the excellent documentation, Judges were able to see this design evolve from initial concept to the final design, giving clarity to the process. Excellent graphic communication and comprehensive supporting documents with elevations, details and sections make it easy to read the plans.
Given what was a challenging brief, the design cleverly links the proposed entertaining, pool and tennis court to the main house with a good connection to the existing deck areas, while the layout takes advantage of the views across the property to the dam, making this the focal point.
Material selections will fit in with existing structures and surfaces and enhance the plant palette which are mostly indigenous to the local area, providing a strong link to the materials but also the wider landscape."







